First & Second Floor Office Layout Plan | AutoCAD DWG Details
Description
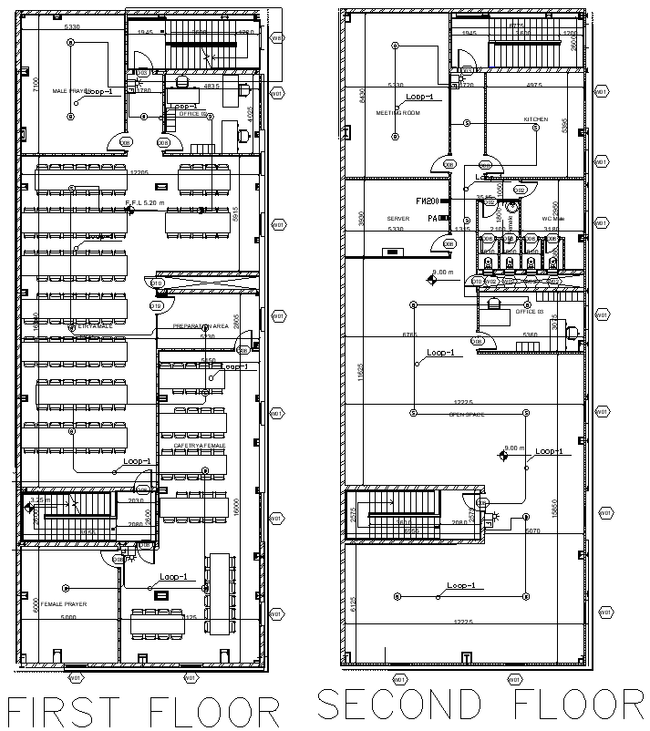
Download the AutoCAD DWG file and get an office layout plan in detail for the first and second floors, which will be great for architects, facility planners, and office designers. You will get this full CAD drawing that correctly shows the details of the required space: preparation, cafeteria, female prayer room, meeting room, server room, open space, kitchen, and legal office. Each of the areas is elaborated with accurate, real-life measurements, and annotations that express the best use of space for functionality. Be it designing a new office or renovating one, this DWG file gives the clarity and detail needed for the successful planning and execution of projects. Enhance your process of office design and organize your functional workspace with these professionally drafted AutoCAD plans. Get instant access to these professional-grade resources and facilitate your office layout design process for a productive and comfortable work environment.

Uploaded by:
Eiz
Luna

